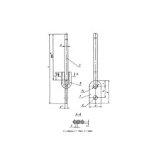
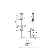
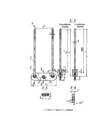
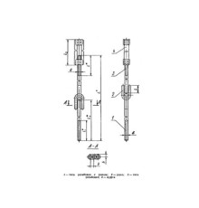
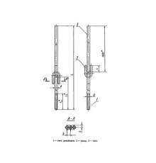
Тяги для опор — ключевые элементы подвесных систем трубопроводов, предназначенные для надежного крепления и регулировки положения коммуникаций на промышленных объектах, ТЭЦ и в котельных.
Изделия обеспечивают устойчивость, компенсируют тепловое расширение и вибрации, гарантируя долговечную и безопасную эксплуатацию трубопроводов. Мы предлагаем тяги из высокопрочной стали с антикоррозионным покрытием.
Ассортимент включает различные типы: гладкие тяги, резьбовые тяги с муфтой или ушком, тяги с правой и левой резьбой, шарнирные тяги, а также модели с серьгой, проушиной и траверсой для решения любых проектных задач.
Оформите заказ онлайн для юридических лиц с безналичным расчетом. Получите коммерческое предложение и рассчитайте доставку по Беларуси.
