- НаличиеВ наличии
Цена по запросу
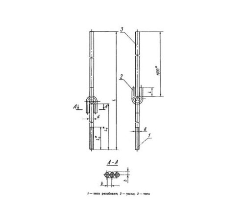
Шарнирные резьбовые тяги предназначены для надежного крепления и регулировки положения трубопроводов в подвесных системах. Они обеспечивают компенсацию тепловых расширений и вибраций, гарантируя стабильность и безопасность всей конструкции.
Изделия изготавливаются из высокопрочных марок стали (09Г2С, 12Х18Н10Т, 15Х5М, 20Х1М1Ф1ТР, сталь 20, сталь 3), что обеспечивает их долговечность, коррозионную стойкость и способность выдерживать значительные нагрузки от 3 до 150 кН.
Мы предлагаем широкий сортамент типоразмеров с диаметром от 10 до 48 мм и массой от 0,86 до 66,1 кг, что позволяет подобрать оптимальное решение для проектов любой сложности.
Отзывов: 0
Нет отзывов об этом товаре.
Вопросов: 0
Пока нет вопросов об этом товаре. Станьте первым!
